Das ehemalige Ökonomiegebäude wurde 1923 erbaut und ist in einen Wohn-und Arbeitsteil gegliedert. Zusammen mit der Villa «Les Lorettes», Baujahr 1924 und dem Kellereigebäude aus den 70er Jahren bildet es eine Gebäudegruppe am Stadtrand von La Neuveville. Das Weingut liegt an guter Lage mit Blick auf den Bielersee, die St. Petersinsel und die Alpenkette.
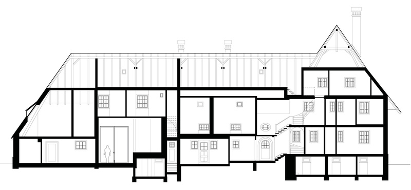
Das grosse Ökonomiegebäude ist als schützenswertes K-Objekt eingestuft und soll inklusive Haustechnik komplett saniert werden. Die bestehende Bausubstanz soll im gesamten Gebäude erhalten bleiben und mit den neuen Ausbauten ein harmonisches Gesamtbild abgeben. Der alte Wohnteil verfügt über historisch wertvolle Innenausbauten, welche saniert und für die Nutzung wieder aktiviert werden. Die bestehenden Wohnflächen werden neu aufgeteilt. Tenn und Heubühne werden in eine Wohnnutzung überführt.
Der Platzbedarf, welcher bei der Umnutzung des Bauernhauses für den Winzerbetrieb wegfällt, wird westlich durch einen eingeschossigen Wagenschopf kompensiert. Der Wagenschopf beherbergt Werkstatt, Garage und Waschplatz.
Verfahren: Einladungsverfahren für Architekturleistungen
Auftraggeber: Immobilien Stadt Bern
Architekt: wahlirüefli Architekten SIA und Raumplaner AG, Biel
Holzbauingenieur: Indermühle Bauingenieure AG, Thun
Geschossfläche SIA 416: 1’091 m²
Gebäudevolumen SIA 416: 3’050 m³
Baukosten BKP 1-9: CHF 3’310’000
Baukosten BKP 2: CHF 2’850’000
Bauprojekt: 2021
Ausführung: 2022–2023