Preis: Best Architekt 26,
Anerkennung Baukulturpreis Kanton Solothurn 2020-2025
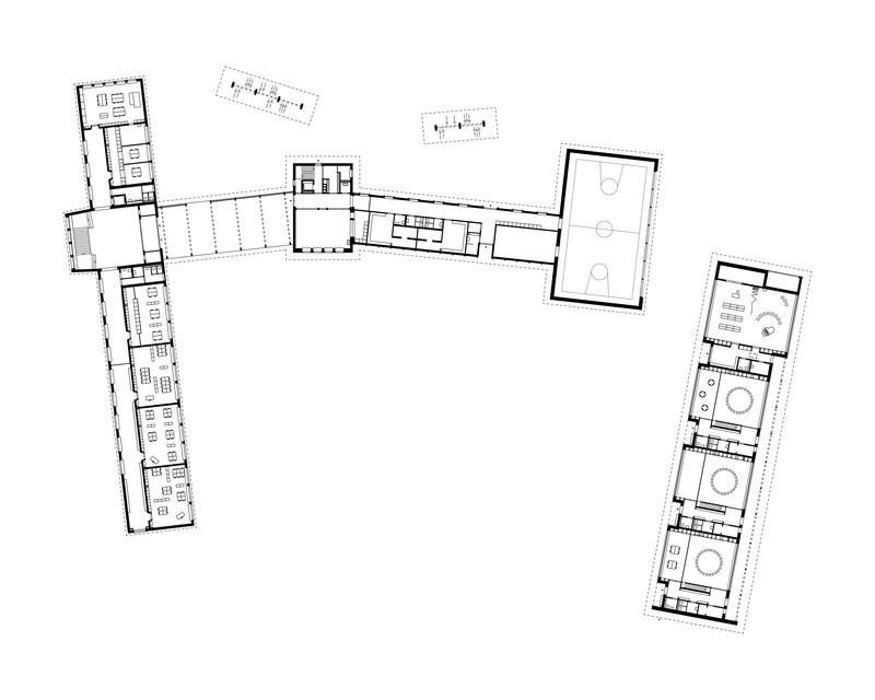
Nach Abschluss der 1. Etappe (Neubau Kindergarten), wurde in der 2. Etappe der nördliche Schultrakt nach denkmalpflegerischen Grundsätzen saniert. Die ursprüngliche Qualität des Gebäudes wurde wieder hergestellt. Räumliche Anpassungen an aktuelle Lehrplanvorgaben wie z.B. Gruppenräume wurden vorgenommen. Die Bestandesbauten wurden durch die Architekten Heinz Walthard, Heinrich Hoeschele und Ludwig Doench 1949 geplant und sind inklusive des grosszügigen Grünraumes neben der Aare denkmalgeschützt. In diesem Sinne wurden sowohl Gebäude als auch Freiräume bestandesgerecht und sensibel aufgewertet.
Verfahren: Wettbewerb 1. Rang
Auftraggeber: Stadt Solothurn, Stadtbauamt, Abteilung Hochbau, Solothurn
Architekt: wahlirüefli Architekten SIA und Raumplaner AG, Biel
Landschaftsarchitektur: hänggibasler Landschaftsarchitektur GmbH
Geschossfläche SIA 416: 2'574 m²
Gebäudevolumen SIA 416: 11'946 m³
Baukosten
BKP 1-9 CHF 8’531 000
Bauprojekt 2022
Ausführung 2023-2024