Das 6-geschossige Gebäude Rüschlistrasse 14 / 16 wurde 1958 als zusammenhängendes Verwaltungsgebäude erstellt. Beide Gebäudeteile bilden eine Einheit, welche verschiedene Verwaltungsbereiche beherbergen. Sie werden durch separate Eingänge erschlossen. Die Treppenhäuser mit Ihren originalen Terrazzobelägen sind charakteristisch für den Innenraum des Bauwerks aus den 50er Jahren.
Diverse Umbauten wurden etappiert, darunter die Steuerverwaltung im EG und die Cafeteria im 5. OG. In den nächsten 1.5 Jahren werden alle Etagen umgebaut und verschiedene räumliche Anpassungen vorgenommen.
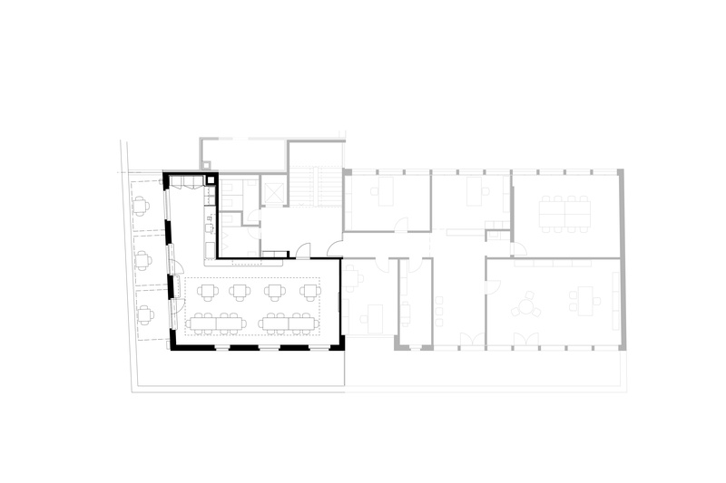
Aufgrund räumlicher Optimierungen konnte für die Angestellten der verschiedenen Verwaltungsabteilungen im 5.OG der Rüschlistrasse 14 eine Cafeteria eingerichtet werden. Diese öffnet sich über eine Terrasse mit Blick über den Jura und die Stadt Biel. Eine entspannte Pausenatmosphäre wurde durch Akustikpaneele aus Eiche und Keramikplatten in warmen Tönen kreiert.
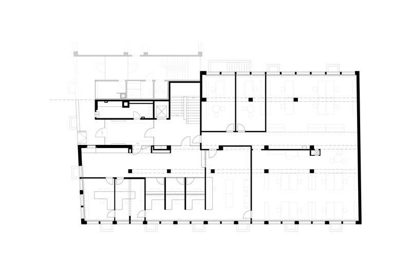
Im EG der Rüschlistrasse 14 wurde für die Steuerverwaltung Biel der Empfangsbereich optimiert. Die Zugangssituation sowie diverse Schalter und Büroflächen wurden umgebaut. Dabei wurden die originalen Raumhöhen mit 2.80 m wieder hergestellt und die Entréesituation durch grosszügige Glastüren heller uns attraktiver gestaltet werden.
Verfahren: Direktauftrag
Auftraggeber: PK der Stadt Biel, vertreten durch Liegenschaften der Stadt Biel
Architekt: wahlirüefli Architekten SIA und Raumplaner AG, Biel
Bauingenieur: Baukonstrukt AG
Geschossfläche SIA 416: 2‘587 m²
Gebäudevolumen SIA 416: 5’584 m³
Ausführung 2023