Zur Erweiterung des Angebots der Hirslandenklinik wurde ein neues Dialysezentrum erstellt. Der ideale Standort für diese Nutzung wurde vorher mit Hilfe einer Machbarkeitsstudie etabliert und dann umgesetzt.
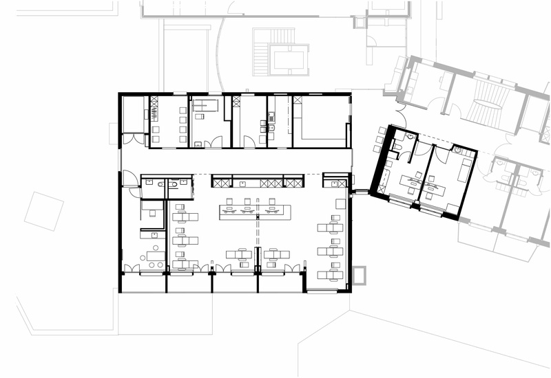
Die neue Abteilung befindet sich im Obergeschoss des Südflügels mit grosszügigem Blick auf den angrenzenden Wald. Die Patienten können die neue Dialyse über einen bestehenden Lift erschliessen, welcher sie von der Rezeption direkt nach oben führt. Die vorher kleinteilige Zimmerstruktur wurde abgebrochen, um einen übersichtlichen Dialyseraum zu erschaffen. Vorallem statische Herausforderungen mussten dabei gelöst werden. Heute stehen 9 Dialyseplätze zur Verfügung, welche von der Überwachungstheke einsehbar sind. Durch die Materialisierung diverer Einbauten in Eiche furniert konnte eine wohnliche Athmospäre geschaffen werden. Diese wird unterstützt durch den frei geformtem PVC Boden, welcher den Raum in Bewegungsflächen und Bettenstellflächen zoniert. Die grünen Farbtöne des Bodens lehnen sich an die bestehende Farbidentität der Klink an und ergänzen diese mit natürlich anmutenden Leinenfarben. Die neue Abteilung begrüsst Ihre Patienten räumlich, klimatisch und akustisch mit einer hohen Aufenthaltsqualität. Die terminliche Umsetzung erfolgte innerhalb von 5 Monaten ohne Beeinträchtigung des Klinikbetriebs.
Verfahren: Direktauftrag
Bauherrschaft: Klinik Hirslanden
Architekt: wahlirüefli Architekten SIA und Raumplaner AG, Biel
Bauingenieur: Mantegani Wysseier AG
Gebäudetechnik: Amstein Walthert AG
Kennzahlen
GF Geschossfläche (SIA 416): 246 m²
GV Gebäudevolumen (SIA 416): 615 m³
Baukosten
BKP 1-9: CHF 2'020'000 inklusive Ausstattung / Medizinaltechnik
BKP 2: CHF 1'360'000
Termine
Machbarkeitsstudie: 2021
Bauprojekt: 2022
Ausführung: 01/2023 - 5/2023