Kindergärten, Klassenzimmer und Musiksaal Himmelrych
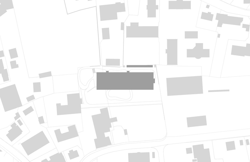
Das Projekt setzt das städtebauliche Prinzip der bestehenden Schule fort: Ein Längsbau wird orthogonal zum Rebstockweg an die nordöstliche Ecke der Parzelle gesetzt. Der eingeschossige Bau bildet den Abschluss des bestehenden Pausenplatzes und ermöglicht im Süden die Hostet für die Kindergärten zu erhalten. Das Gebäude ist den Nutzungen entsprechend in Segmente gegliedert. Diese sind, der natürlichen Topographie folgend, abgetreppt. Am Gebäudekopf befinden sich die beiden Klassenzimmer, der bestehenden Schulanlage zugeordnet. Im Westen bildet das Musikzimmer den zweigeschossigen Abschluss und orientiert sich mit der zum Teil ausserschulischen Nutzung stärker Richtung Dorfzentrum.
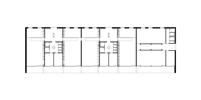
Die Kindergärten werden mit Hilfe einer mittleren, gemeinsamen Nutzungseinheit organisiert. Von der Garderobe führen zwei Rampen in die jeweiligen Kindergärten. Diese machen die Abtreppung der Hanglage auch im Innenraum erlebbar und gliedern gleichzeitig den Innenbereich in einen Gruppen- und einen Hauptraum. Dieser wird durch sichtbare Sperrholzträger strukturiert. Sie integrieren die gewünschten Küchen sowie Schrankelemente und ermöglichen so die grösst mögliche Freifläche zur flexiblen Nutzung.
Aussen mit einem Stückkalkputz versehene Holzrahmenelemente lehnen sich mit Ihrer Materialisierung den mineralisch gehaltenen Schulbauten an. Der mineralische Dickputz und die Holzrahmenelemente erfüllen die hohen ökologischen Ziele der Bauherrschaft. Die lebendige Putzfassade garantiert zudem einen geringen Unterhalt. Das Gebäude ist Minergie-A-ECO zertifiziert. Sämtliche Dachflächen sind mit einer Fotovoltaikanlage ausgerüstet.
Verfahren: Wettbewerb
Auftraggeber: Einwohnergemeinde Ins
Architekt: wahlirüefli Architekten und Raumplaner AG, Biel
In Zusammenarbeit mit rollimarchini Architekten, Bern
Baustatik: Indermühle Bauingenieure, Thun
Gebäudetechnik HLK/S: Acquedotto, Berger, Solvair, Burgdorf
Elektroingenieur: Bering, Burgdorf
Bauphysik: CSD Ingenieure AG, Liebefeld
Landschaftsarchitektur: Weber + Brönnimann AG, Bern
Geschossfläche SIA 416: 1’300 m2
Gebäudevolumen SIA 416: 5’880 m3
Baukosten: BKP 1-9 CHF 7'190'000.-
Bauprojekt: 2015
Ausführung: 2016-17