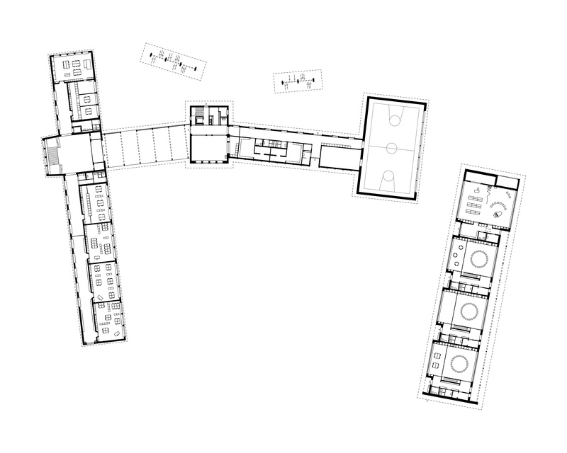
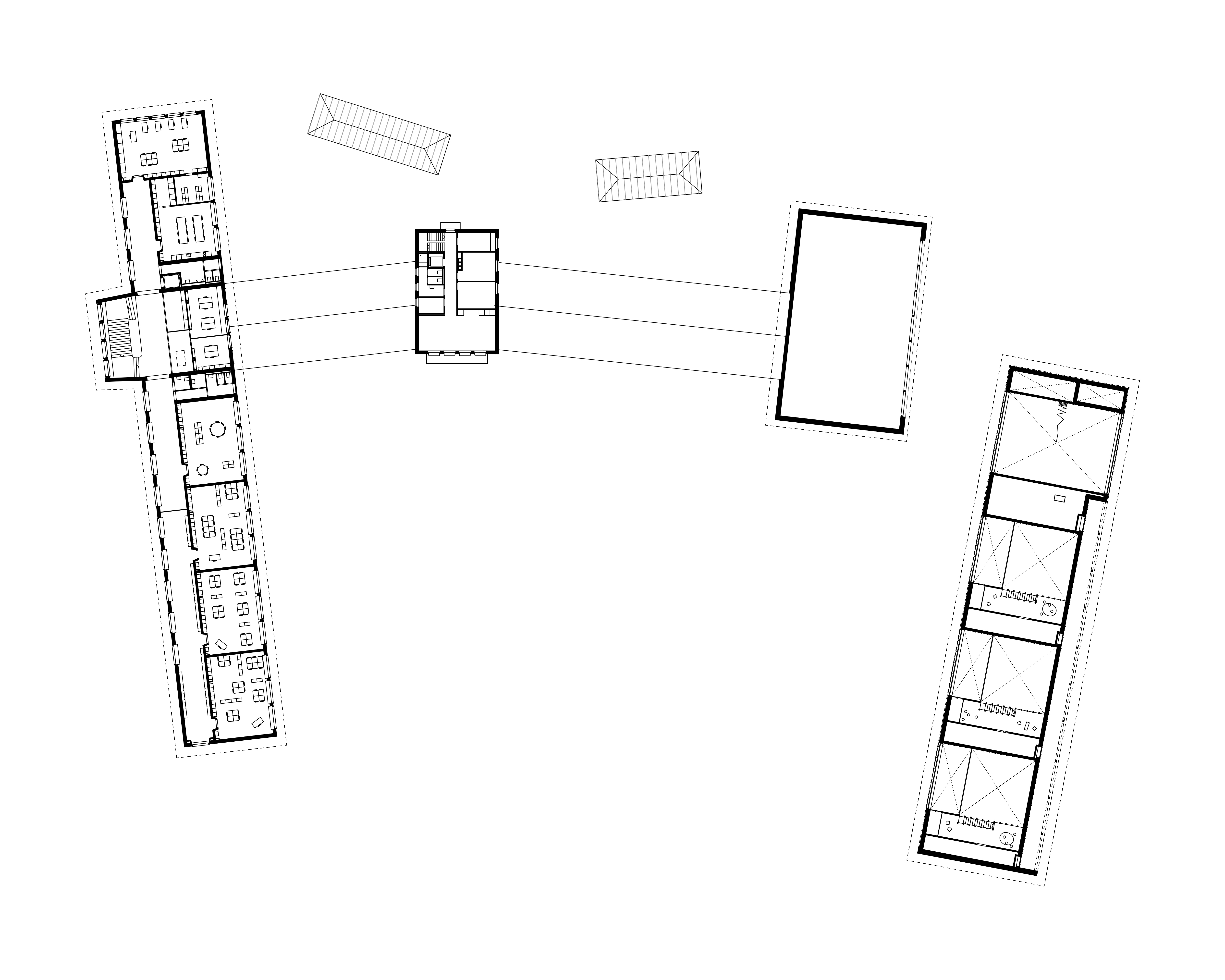
Das vorliegende Projekt spinnt das vorhandene städtebauliche Prinzip der Schulanlage Vorstadt aus den 1950er Jahren weiter. Ein eingeschossiger Längsbau mit Satteldach fügt sich leicht abgedreht zwischen Bestand und Bahngeleise in den Freiraum ein. Der Erweiterungsbau bildet so einen neuen Abschluss des bestehenden Pausenplatzes und ermöglicht im Süd-Osten die geschützten Aussenräume für die Kindergärten. Wie schon immer da gewesen, ergänzt der Neubau die Schule so, dass ein neues Gesamtensemble entsteht.
Verfahren: Wettbewerb 1. Rang
Auftraggeber: Stadt Solothurn Stadtbauamt, Abteilung Hochbau, Solothurn
Architekt: arge wahlirüefli rollimarchini architekten
Landschaftsarchitektur: hänggibasler GmbH
Holzbauingenieur: Indermühle Bauingenieure AG
Geschossfläche SIA 416: 1’032 m²
Gebäudevolumen SIA 416: 3’825 m³
Baukosten: BKP 1–9 CHF 6’634’000
Baukosten: BKP 2 CHF 4’388’000
Bauprojekt: 06/2019– 05/2020
Ausführung Neubau und Sanierung Bestand: 03/2020–03/2024