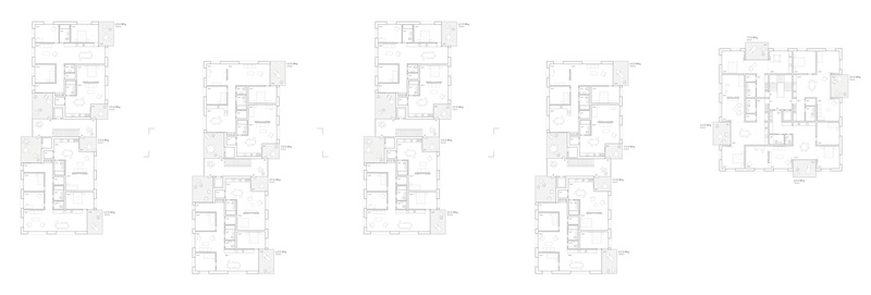
Die neue Wohnüberbauung entsteht auf der Parzelle der ehemaligen Kartoffelzentrale. Ihre Gestaltung leitet sich aus der Analyse ab: Die neue Siedlung folgt nicht dem Schema der gegenüberliegenden Strassenseite, sondern durchbricht die Struktur der Umgebung. Die Gebäudezeilen bleiben in der Querrichtung durchlässig, das Quartier wird geöffnet und stellt einen Bezug über den Bahndamm hinaus zum angrenzenden Wohnquartier her. Als Auftakt setzt ein Kopfbau einen urbanen Akzent. Er vermittelt zwischen den urbaneren Gebieten in Bahnhofsnähe und der dörflichen Körnung an der Jurastrasse. Durch die differenzierte volumetrische Ausformulierung wird das kleinmassstäbliche und heterogene Bebauungsmuster sorgfältig ergänzt und subtil verdichtet. Die vier Zeilen interpretieren eine klassische Wohnform neu. Die Grundrisse sind so organisiert, dass alle Wohnräume entlang der Fassade angeordnet sind. So können die meisten Wohnungen mehrseitig orientiert werden und es entstehen keine Vorder- und Rückseite und die Stirnfassade wird durch die Wohnbereiche belebt. Mit diesen verschiedenen Grundrisstypologien kann optimal auf den Bezug zum Aussenraum reagiert werden.
Die neue Siedlung erhält einen ganz eigenständigen und identitätsstiftenden Charakter, denn die Häuser reagieren in ihrer äusseren Gestalt auf ihre jeweilige Lage und unterscheiden sich subtil in ihrem Ausdruck. Die bestehende Massstäblichkeit durch den Grundrissversatz und die höhenversetzten Attika der Zeilenbauten wird in der Farbgestaltung der Fassade fortgesetzt und die Variation der Typologie spiegelt sich in Form einer Zweifarbigkeit als gestalterisches Element wider.
Verfahren: Studienauftrag
Auftraggeber: Kartoffelzentrale Amt Burgdorf (KAB)
Architekt wahlirüefli Architekten SIA und Raumplaner AG, Biel
In Zusammenarbeit mit rollimarchini Architekten, Bern
Landschaftsarchitektur: hänggibasler Landschaftsarchitekten, Bern
Geschossfläche SIA 416: 14’000 m2
Gebäudevolumen SIA 416: 43’300 m3
Geschätzte Baukosten: BKP 1-9 CHF 32’000'000.-