Schlössli, Biel

Studienauftrag 1. Rang, 2013
In Zusammenarbeit mit rollimarchini Architekten, Bern

  • Einweihung der ersten Etappe, Schlössli, Biel

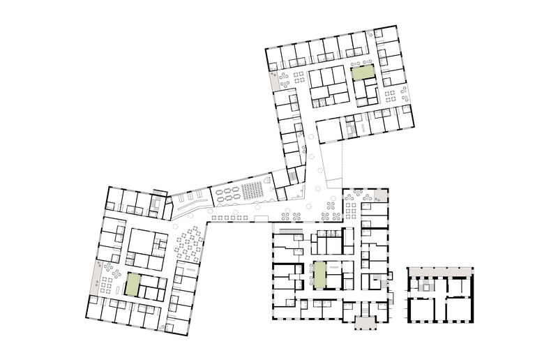
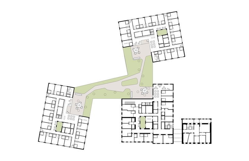
    Das Zentrum für Langzeitpflege Schlössli Biel hat den ersten von zwei Neubauten, nach 18-monatiger Bauzeit, offiziell eingeweiht. In einer zweiten Etappe wird nun das «Haus B» des «Schlösslis» abgerissen und durch einen weiteren Neubau ersetzt. Dieser wird nochmals 70 Einzelzimmer umfassen, so dass das «Schlössli» Biel, nach Fertigstellung, insgesamt 130 Zimmer anbieten kann. Der Abschluss der Gesamtsanierung ist für das Jahr 2019 vorgesehen.

    Einweihung der ersten Etappe, Schlössli, Biel
  • Spatenstich Schlössli Biel

    "Nach langen Jahren der Planung erfolgte heute beim Schlössli Biel, im aufstrebenden Quartier Mett, der Spatenstich für das Gesamterneuerungsprojekt Bau und Infrastruktur."

    Anlässlich des Starts in die erste Etappe der Gesamterneuerung Schlössli Biel veröffentlicht der Präsident des Vereins Schlössli Biel folgende Medienmitteilung.

    Spatenstich Schlössli Biel
  • Schlössli Biel in Grundrissfiebel

    In die neu erscheinende Grundrissfiebel 'Alterszentren' wurde der Wettbewerbsbeitrag zur 'Gesamterneuerung Schlössli Biel' aus dem Jahr 2013 mit aufgenommen.

    Schlössli Biel in Grundrissfiebel