Die Gemeinde Ittigen plant bei der bestehenden Schulanlage Altikofen eine Erweiterung. Durch die städtebauliche Setzung des vorgeschlagenen zweigeschossigen Ersatzneubaus wird das bestehende Schulensemble komplettiert. Die drei nutzungsspezifisch gegliederten Baukörper bilden einen neuen grosszügigen Pausenplatz als Herzstück der Anlage.
Die Aula wird wie bisher unter dem Pausenplatz angeordnet und fügt sich so zwischen die Bestandesbauten, dass diese verbunden werden können. Die Fassade der Aula schliesst nahtlos an den Bestand und schafft einen grosszügigen Eingangsbereich für die öffentlichen Nutzungen. Zudem definiert er die Hangkante zum Pausenplatz neu und gibt der Schule hangseitig ein Gesicht.
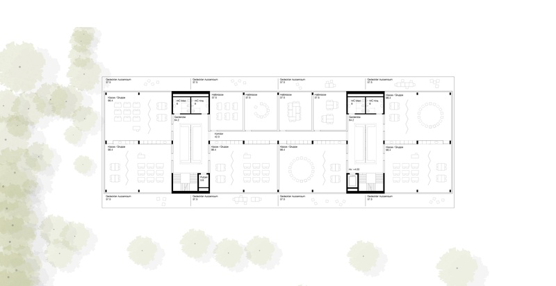
Dem Ersatzneubau Basisstufe, Tagesschule und Gestalten liegt ein klares Volumen mit effizienter Grundrisstypologie zu Grunde. Durch die klare und symmetrische Struktur mit einer offenen Glasfassade wird eine Architektursprache gewählt, welche sich in den Bestand integriert. Durch grosszügige 2-geschossige Garderobenräume verbunden, erhalten die im 1. Obergeschiss angeordneten Basisstufen ihre eigenen, geschützten Aussenräume auf dem Dach des neuen Volumens.
Verfahren: Projektwettbewerb im selektiven Verfahren
Auftraggeber: Gemeinde Ittigen
Architekt wahlirüefli Architekten SIA und Raumplaner AG, Biel
In Zusammenarbeit mit rollimarchini Architekten, Bern
Landschaftsarchitektur: graber allemann landschaftsarchitektur gmbh, Itendorf
Holzbauingenieur: Indermühle Bauingenieure, Thun
Geschossfläche SIA 416: 4'350 m2
Gebäudevolumen SIA 416: 17'500 m3
Geschätzte Baukosten: BKP 1-9 CHF 14'000'000.-
Wettbewerb 2020